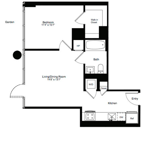
170 Amsterdam Avenue #01L
All Upper West Side, Manhattan, NY 10023
1 bed, 1 bath · Estimated Jan 1, 2025
Future apartment listing
This apartment is not available yet, but it can be matched to you before it hits the market.
Description
Apartment amenities
Washer / dryer
Private outdoor
Dishwasher
Building amenities
Outdoor space
Gym
Doorman
Laundry room
Elevator
Policies
Pets allowed
Verify details with the agent
Listing history
Jan 1, 2024$4,813
FAQ
·1 bed, 1 bath
%2F-73.983931%2C40.776009%2C14%2F640x640%402x%3Faccess_token%3Dpk.eyJ1Ijoib3BlbmlnbG9vIiwiYSI6ImNsYjNmMjVwdzBjeHgzd21wYmJmZDB0eGYifQ.XZvZCOh51yXuDBE-I3Bg0A&w=1920&q=75)


